土留め板 鋼板 144696-土留め板 鋼板
検索結果 215 のうち 148件 "土留め板" 価格その他の詳細はサイズ及び色により異なる場合があります。 DAIM 土と芝の根 どめどめシート 27cm 3m巻 6セット 花壇作り 土留め ストッパー DIY 庭造り 造園 芝生 根止め 手入れ 間仕切り 園芸 ガーデニング 第一ビニール土止め 板などがお買得価格で購入できるモノタロウは取扱商品1,800万点、3,500円以上のご注文で送料無料になる通販サイトです。 ご利用中のブラウザ(Internet Explorer バージョン8)は /9/1 以降はご利用いただけなくなります。土留柵 鋼管杭 芯材に鋼管を用いた強度の高い鋼管杭土留め柵です。 高さ1m以上の板柵土留めも対応可能ですので、強度の求められる 山間部や河川護岸部などにも使用されております。

簡易土留め板の施工例 簡易的な土留め板の施工方法 小山市my様邸 施工 外構工事 リフォーム 外構
土留め板 鋼板
土留め板 鋼板-土留鋼板「とまるくん」専用支柱φ486 L1000~00 鋼板の引っ張り強度を利用するため従来より確かな土留効果が得られます。 ※本製品は支柱のみとなります。 本製品を使用する場合は別途土留板とまる君をご購入下さい。 専用キャップも別売です。 1土木資材 シリーズ 土留鋼板 とまるくん 本体のみ 10枚入 キャップと杭は別売り うぐいす色 共B 代引不可 現場入不可 個人宅配送不可 商品番号 604




正規品 安全鋼板 仮囲い鋼板 外建材 亜鉛鋼板 完成鋼板 安全鋼板 厚1 2x幅540x長00mm 50枚セット ダークブラウン 資材外棚 現場用朝顔 工事現場 角波 土留 倉庫外壁サイデングに 送料別途お見積品 高級感 Www Dukunoojamaicankitchen Com
SS net サンポリ あぜ板 アゼ波 40cm×1cm 枚入 あぜ波 板 土留め板 あぜガード 11,500円 送料無料 1%獲得(115ポイント) メーカーよりお取寄せ 500 (7件) SS net 愛農 あぜ板 埋込み器 軽量アルミ製 450〜760mm あぜ波 板 土留め板 農業資材 農業 田んぼ 水田大商鋼材株式会社 大阪市中央区北浜1丁目6番10号 北浜野村ビル9F tel (代) fax土留鋼板「とまるくん」 株式会社ニッケンフェンス&メタル 組み立てやすく、確かな土留め効果 広範囲な用途と安価な施工費用 完璧な防錆対策 自然景観にマッチする豊富なカラーバリエーション 在庫管理、搬送が簡単 <設置用途> ・治山工事
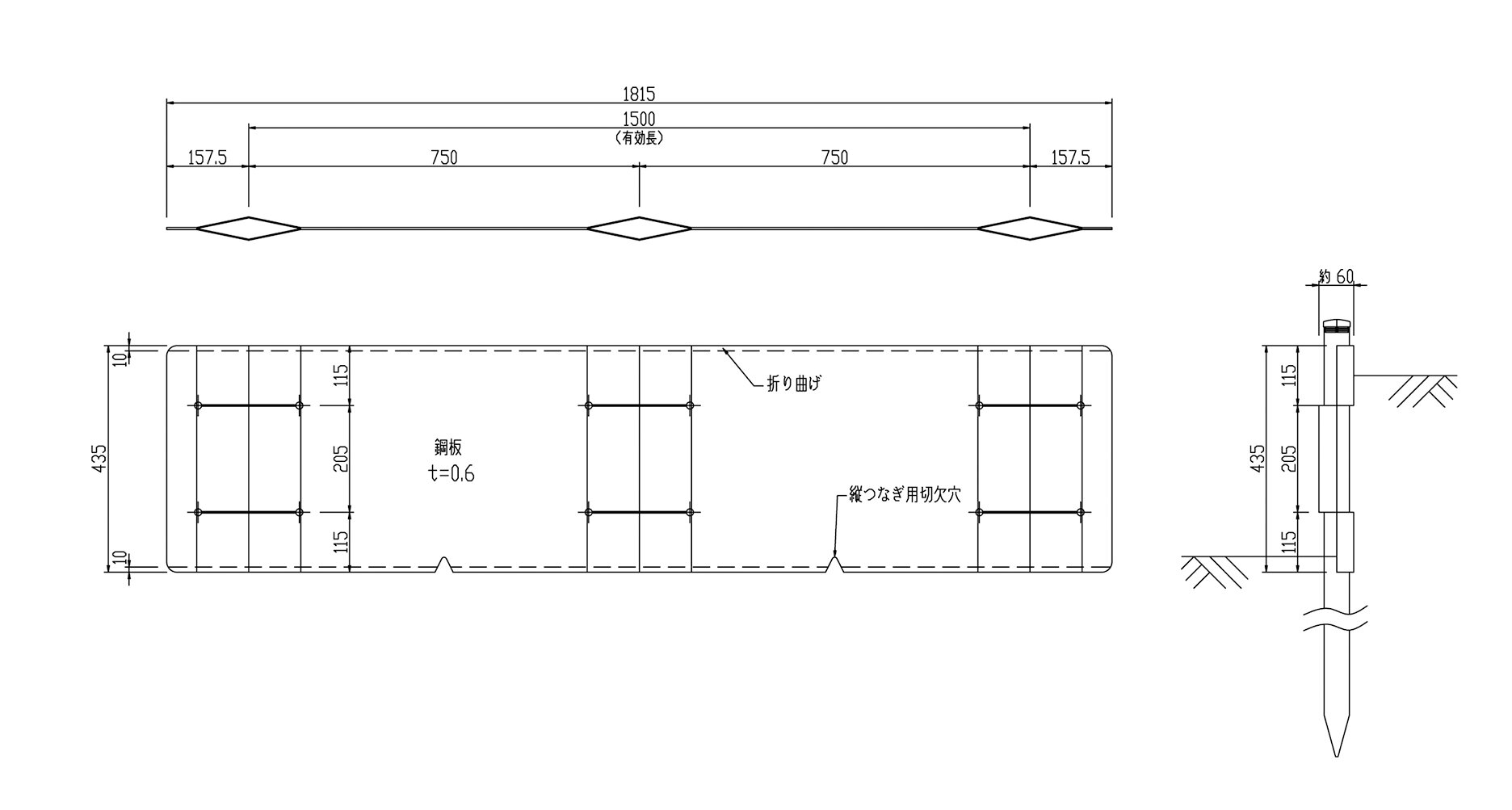
土留め鋼板 寸法 (mm) 重量(㎏/枚、本、個) 価格 (税込価格) PSW(本体) t06×435×1815 406 ¥3,230~ (¥3,553~) お電話でご注文・お見積遮音板 土留板 ・板厚90mmの土留板は遮音板を用いる。この場合目地材は用いない。 ・落下防止リング付も製作可能です。 ・尚、長さ3,960mm以下の製品、土留板の箱抜部については製作可能な範囲がありますので係員に御問合せ下さい。コーン・現場用品/単管用 土留鋼板 PSW1845 (関東)のご紹介。「ロイモール」は、大和ハウスグループ・ロイヤルホームセンターが運営するオンラインショッピング通販サイトです。豊富なDIY用品・作業服・園芸用品・生活用品・ペット用品まで7万点以上の充実の品揃えです。
商品の説明 寸法:06×435×1815mm 重量:406kg 材質:亜鉛メッキ鋼板 本体のみ。 支柱別売。 10枚組での販売です。 部材が鋼板と支柱だけなので、簡単迅速に組み立てられ、かつ支柱の先端部は特殊加工により垂直に打ち込み易くなっております。 また鋼板の引っ張り強度を利用するため従来の工法より強くて確かな土留効果が得られます。土留めに使う矢板の種類 土留めに使う矢板には下記の種類があります。 ・親杭横矢板 ・鋼矢板 ・ソイルセメント柱列壁;重量:406kg 材質:亜鉛メッキ鋼板 本体のみ。 支柱別売。 10枚組での販売です。 部材が鋼板と支柱だけなので、簡単迅速に組み立てられ、かつ支柱の先端部は特殊加工により垂直に打ち込み易くなっております。 また鋼板の引っ張り強度を利用するため従来の工法より強くて確かな土留効果が得られます。 鋼板のフレキシビリティーを利用して、地形に応じた




土留 Diyの人気商品 通販 価格比較 価格 Com




サンポリ アゼ板なみ あぜ板 アゼ波 アゼ板なみ 50cm 1cm 農業資材 枚入 畑 土留め板 農業資材 土留め板 農業 田んぼ 水田 あぜガード s s n Font Color Size 2 B 送料無料 お得な枚 24m セットの簡単連結アゼ波板 です B Font
課題 露出した掘削壁面を速やかに覆って設置された横矢板を掘削壁面に速やかに密着させて、周囲の地盤に緩みが生じるのを回避できる親杭横矢板による土留工法を提供する。 解決手段 H鋼11を親杭として用いた親杭横矢板による土留工法において、フランジ12を予定する土留壁面に波板鋼板 16mm×915mm×915mmの波板鋼板。 Φ24のボルト穴が前後に6つあります。 早急なご注文にも対応が可能です。 ※ご注文は50枚以上から承ります。土留め鋼板(鋼板本体のみ) 色緑 重量406kg *注文10枚以上入力して下さい 3,260 円 土留め 支柱10M φ486mm *本体と同色 1個より入力 2,060 円 土留め 支柱15M φ486mm *本体と同色 1個より



鋼矢板の種類と重量と強度 土留 Com



土留め 鋼菅 シリーズ 擬木 Plawood プラウッド リス興業株式会社
55 土留めh形杭の縦継ぎ標準図 359 56 そ の 他 3511 561 ps山止め工法 3511 351 第5章 土留工・仮締切工 51 概 説 511 適用範囲 本基準は橋梁下部工、擁壁工、函渠工の開削工事における標準的な土留工の計画・設計に適用する。 本基準で扱う標準的な検索結果 181 のうち 4996件 "土留め板"防護柵・横矢板 とまった君シリーズ(横矢板工法受け金具) 軽量鋼矢板・鋼矢板(横矢板工法用定尺品) 横吊り君(鋼矢板横吊り専用クランプ) 敷鉄板・敷板関係 敷鉄板・縞鋼板;




鋼矢板 建材 製品情報 日本製鉄




楽天市場 土留め 板の通販
設計されており、薄い鋼板でつくられているにも かかわらず極めて高い強度をもっています。 日鐵住金軽量鋼矢板は、薄い鋼板でつくられて います。したがって、容易に取り扱えますから迅速 な作業が行え能率的です。土留鋼板 とまるくん 支柱付き100m組 (鋼板67枚キャップ付き支柱135本) 日鉄住金ハイカラー 色選択 北海道・沖縄・離島への送料はお見積りになります。 広範囲な用途と安価な施工費用 完璧な防錆対策 部材が軽量搬送が容易 災害時の緊急資材として、イノシシ侵入防止に利用 土留鋼板「とまるくん」の配送について擬板 30t W0 00L 105kg 枚 6,900 つなぎ板 長穴4 260 0 09kg 枚 1,100 連結ボルト M12 80 つなぎ板/擬板 組付 組 140 組付ボルト M12 0 丸杭/つなぎ板 組付 組 380 組付ボルト M12 180 丸杭/擬板 組付 組 280




豪雨で崩れた土砂を自分で直せば材料費のみ トーヨー産業 株 暗渠管 暗渠排水全般 法面資材等




土 留め 板 畑の土が道路にはみ出てしまいますが簡単に土留め出来る方法はありますか Docstest Mcna Net
簡単打ち込み式 ワイドタイプのエッジストッパー 土留 め作業は今までとても大変な作業でした。 この打ち込み式のワイド 土留 めを使えば、重い土袋を使わずに打ち込むだけで 簡単に 土留 め作業ができ、見た目もすっきり! 高さが245cmで、 ¥10,266 エンジョイ特選館 納期2週間程度 土留鋼板 とまるくん 本体のみ 10枚組 ダークブラウン色 ニッケンフェンス組立てやすく、確かな土留効果 土留鋼板 とまるくん 支柱付き9枚組1段張り (鋼板9枚キャップ付き支柱H1000mm19本) 55kg 2個口 日鉄住金ハイカラー 色選択 北海道・沖縄・離島への送料はお見積りになります。 ※H1000mm9枚組は長さ 約138mに相当します。 (有効長15m×9両端)カテゴリトップ > 農業資材 > 土農資材 送料無料 組立てやすく、確かな土留効果 日鉄住金ハイカラー 土留鋼板 とまるくん 厚06×長さ1815×高さ435mm 5枚 色選択 北海道・沖縄・離島への送料はお見積りになります。 広範囲な用途と安価な施工費用 完璧な防錆対策




土留鋼板とまるくん 昭和工業株式会社は道路製品 土木製品及び秩父情報やエクステリア情報を発信します




Nippon Steel ニッケンフェンス メタル



軽量鋼矢板 和建




ヤフオク 土留め 板の中古品 新品 未使用品一覧




アルミ矢板 アルミトレンチ 株式会社ホーシン 建設資材のパイオニア 資材企画 設計 製造 販売 レンタル メンテナンスまで




正規品 安全鋼板 仮囲い鋼板 外建材 亜鉛鋼板 完成鋼板 安全鋼板 厚1 2x幅540x長00mm 50枚セット ダークブラウン 資材外棚 現場用朝顔 工事現場 角波 土留 倉庫外壁サイデングに 送料別途お見積品 高級感 Www Dukunoojamaicankitchen Com




仮囲い 亜鉛メッキ鋼板 カラーパネル 仮設資材 足場材 各種クランプ販売 あしば職人 Com




土留鋼板 とまるくん 支柱と鋼製キャップのみ 10本組 F48 6 1000mm ダークブラウン色 共b 個人宅 現場入 北海道不可 代引不可 の通販はau Pay マーケット 株式会社プラスワイズ Au Pay マーケット店




土留 フェンスの人気商品 通販 価格比較 価格 Com




ネックス 株式会社共生




豪雨で崩れた土砂を自分で直せば材料費のみ トーヨー産業 株 暗渠管 暗渠排水全般 法面資材等



軽量鋼矢板 敷鉄板 養生用鋼板のことなら鋼板リース株式会社 大阪 名古屋 九州



土留鋼板 次世代足場 クランプのトップブランド 平和技研株式会社



鉄道act研究会 新技術紹介



日鉄住金ハイカラー 土留鋼板 とまるくん 厚0 6 長さ1815 高さ435mm 5枚 3kg 色選択 Wata0327 ザ タッキーyahoo 店 通販 Yahoo ショッピング



1




土留めの値段と価格推移は 199件の売買情報を集計した土留めの価格や価値の推移データを公開



土留鋼板 次世代足場 クランプのトップブランド 平和技研株式会社




格安 簡単に自分で施工 傾斜地の土砂崩れ防止 トーヨー産業 株 暗渠管 暗渠排水全般 法面資材等




土留鋼板 とまるくん 建資郎




花壇の土留めや縁切り 植栽を引き立てる背景などに その他 木 ガーデニング 農業 柵nxstyle 花壇材 ガーデンスリーパー段違四連 土止め 15個 農業資材 送料無料 A Life Shop




単管用 土留鋼板 psw1845 関東 の通販 ロイヤルホームセンター公式ロイモール



簡易土留め板 Uパネル 実績紹介 大成コンクリート




楽天市場 土留鋼板 とまるくんの通販



簡易土留め 高橋工務店 川崎市宮前区 スタッフブログ



1




Nippon Steel ニッケンフェンス メタル



1




鋼板本体 支柱部材 仮設資材 足場材 各種クランプ販売 あしば職人 Com




簡易土留め板の施工例 簡易的な土留め板の施工方法 小山市my様邸 施工 外構工事 リフォーム 外構



簡易土留め板 Uパネル 実績紹介 大成コンクリート




鋼矢板 建材 製品情報 日本製鉄




100 本物保証 支柱と鋼製キャップのみ 10セット 土留鋼板とまるくん用 F48 6 1000mm うぐいす色 共b 代引不可 現場入不可 個人宅配送不可 安い Www Trailconnections Com



軽量鋼矢板 鋼矢板 横矢板工法用定尺品 和建




楽天市場 土留鋼板 とまるくんの通販




06 1047号 親杭横矢板による土留工法及びメッセル鋼板 Astamuse




Nippon Steel ニッケンフェンス メタル



土留め 鋼菅 シリーズ 擬木 Plawood プラウッド リス興業株式会社




店舗限定 土留鋼板 うぐいす色 1815 435 0 6t 建築資材 木材ホームセンター通販のカインズ




土留鋼板 とまるくん 建資郎



土留鋼板 とまるくん 支柱付き100m組1段張り 鋼板67枚 キャップ付き支柱135本 648 7kg 日鉄住金ハイカラー 色選択 Wata0330 ザ タッキーyahoo 店 通販 Yahoo ショッピング




豪雨で崩れた土砂を自分で直せば材料費のみ トーヨー産業 株 暗渠管 暗渠排水全般 法面資材等



土留め鋼板 オールサポート




楽天市場 土留め 板の通販




組立土留め 製品カタログ 太洋コンクリート工業株式会社




ネックス 株式会社共生




楽天市場 ニッケンフェンス メタル園芸用土留鋼板支柱 パネルセット 設置2 2m セット 支柱6本 パネル5枚 ニッケンフェンスアンドメタル店




Nippon Steel ニッケンフェンス メタル




土留鋼板 とまるくん 建資郎




H鋼土留め工事



Nippon Steel ニッケンフェンス メタル




土留鋼板 とまるくん 建資郎




豪雨で崩れた土砂を自分で直せば材料費のみ トーヨー産業 株 暗渠管 暗渠排水全般 法面資材等




15 号 仮設土留め装置と土留め構造物の構築方法 Astamuse



土留鋼板 とまるくん 支柱付き10枚組2段張り 鋼板10枚 キャップ付き支柱h1500mm11本 日鉄住金ハイカラー 色選択 Wata0347 ザ タッキーyahoo 店 通販 Yahoo ショッピング




土留め板 厚板 都建材工業株式会社




Amazon Co Jp 個人宅 現場入 北海道不可 土留鋼板 とまるくん 本体のみ 10枚組 うぐいす色 ニッケンフェンス メタル 共b 代不 Diy 工具 ガーデン




土砂災害警戒区域にて 土留鋼板 とまるくん 施工 小川名建設 Youtube



敷鉄板 敷き鉄板 縞鋼板 和建




ヤフオク 土留め 板 の落札相場 落札価格



簡易土留め板 Uパネル 実績紹介 大成コンクリート



安全鋼板 白 オールサポート




土留鋼板とまるくん 昭和工業株式会社は道路製品 土木製品及び秩父情報やエクステリア情報を発信します




ヤフオク 土留め 工具 Diy用品 の中古品 新品 未使用品一覧




庭 おしゃれまとめの人気アイデア Pinterest Ming Matsuki 21 庭 花壇 花壇 レンガ




各種擁壁 土留工事 総合建設業の土佐工業株式会社




製品紹介 土木資材 土留メッシュ 小岩金網株式会社




Tk邸18of富野工務店



外構 実例集 その他 株式会社 翔和緑花建設




ガード鋼板 スリースター総合カタログ




Amazon Co Jp 個人宅 現場入 北海道不可 土留鋼板 とまるくん 本体のみ 10枚組 うぐいす色 ニッケンフェンス メタル 共b 代不 Diy 工具 ガーデン




楽天市場 土留鋼板 とまるくんの通販




土留め板 厚板 都建材工業株式会社




Amazon Co Jp 個人宅 現場入 北海道不可 土留鋼板 とまるくん 本体のみ 10枚組 うぐいす色 ニッケンフェンス メタル 共b 代不 Diy 工具 ガーデン




土留めの値段と価格推移は 199件の売買情報を集計した土留めの価格や価値の推移データを公開




土留 フェンスの人気商品 通販 価格比較 価格 Com




土留め鋼板とまるくん 施工 氏神様を土砂から護るために 小川名建設 Youtube




土留 フェンスの人気商品 通販 価格比較 価格 Com




Amazon Co Jp 個人宅 現場入 北海道不可 土留鋼板 とまるくん 本体のみ 10枚組 ダークブラウン色 ニッケンフェンス メタル 共b 代不 Diy 工具 ガーデン




中古土留が無料 格安で買える ジモティー




豪雨で崩れた土砂を自分で直せば材料費のみ トーヨー産業 株 暗渠管 暗渠排水全般 法面資材等




山留め板 木矢板 土留め板 丸太杭 松杭 木杭 基礎杭なら室岡林業




土留 Diyの人気商品 通販 価格比較 価格 Com




土留鋼板 とまるくん 建資郎




グリーンウォール 簡易土留壁 土木鉄構商品 防災商品 日鉄建材株式会社



1




プラ擬木 板柵土留 昭和工業株式会社は道路製品 土木製品及び秩父情報やエクステリア情報を発信します




Nippon Steel ニッケンフェンス メタル




土留 フェンスの人気商品 通販 価格比較 価格 Com




土留めの値段と価格推移は 199件の売買情報を集計した土留めの価格や価値の推移データを公開




簡易 土 留め たて込み簡易土留 Ntシーティングプレート 西尾レントオール株式会社 Amp Petmd Com




18 号 土留め部材 及び土留め部材の施工方法 Astamuse




楽天市場 土留め 板の通販




新品 安全鋼板 仮囲い オールサポート



土留め 鋼菅 シリーズ 擬木 Plawood プラウッド リス興業株式会社




土留 Diyの人気商品 通販 価格比較 価格 Com
コメント
コメントを投稿